2007年12月23日

【賃貸アパート】1DK 76,000円 荏原町駅 徒歩8分 中延駅 徒歩6分

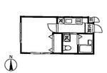
物件NO:005031
所在地:品川区中延6
アクセス:荏原町駅 徒歩8分 中延駅 徒歩6分
建物:木造2階建ての1階部分
間取り:1DK  専有面積:30u
賃料:7.6万円
管理費:なし
敷1・礼2
2口ガスコンロ使用可・バストイレ別・南向き・二人入居相談・洗濯機置場室内・独立洗面台・床下収納・エアコン

この物件のお問い合わせ 物件番号をご記入下さい
又はアービスワン TEL03−6913−4343までお問い合わせください。
101.jpg
posted by アービスワン at 19:08| Comment(0) | 日記

2007年11月17日

【賃貸アパート】1K 94,000円 都立大学駅 徒歩10分

物件NO:005031
所在地:目黒区碑文谷3
アクセス:都立大学駅 徒歩10分
建物:木造2階建ての2階部分
間取り:1K  専有面積:25.98u
賃料:9.4万円
管理費:2,000円
敷2・礼2
1口ガスシステムキッチン・バストイレ別・洗濯機置場室内・フローリング・シャンプードレッサー・オートロック・自転車置き場・2階角部屋

この物件のお問い合わせ 物件番号をご記入下さい又はアービスワン TEL03−6913−4343までお問い合わせください。

201.jpg
posted by アービスワン at 23:04| Comment(0) | 日記

2007年11月13日

【賃貸マンション】1K 85,000円 西小山駅 徒歩4分

物件NO:005030
所在地:目黒区原町1
アクセス:西小山駅 徒歩4分
建物:鉄筋コンクリート造3階建ての2階部分
間取り:1K  専有面積:22.8u
賃料:8.5万円
管理費:3000円
敷2・礼2
3口ガスシステムキッチン・バストイレ別・洗濯機置場室内・フローリング・シャンプードレッサー・浴室換気乾燥機・浴室追い焚き機能・オートロック・自転車置き場

この物件のお問い合わせ 物件番号をご記入下さい又はアービスワン TEL03−6913−4343までお問い合わせください。

203.jpg
posted by アービスワン at 13:34| Comment(0) | 日記

2007年10月30日

【賃貸マンション】1R 75,000円 西小山駅 徒歩3分

物件NO:005029
所在地:目黒区原町1
アクセス:西小山駅 徒歩3分
建物:鉄筋コンクリート造3階建ての1階部分
間取り:1R  専有面積:20u
賃料:7.5万円
管理費:なし
敷1・礼2
ガス1口コンロ付・洋室フローリング7帖・南向き・自転車置き場
ペット相談(猫のみ・敷2)
この物件のお問い合わせ 物件番号をご記入下さい
又はアービスワン TEL03−6913−4343までお問い合わせください。
303.jpg
posted by アービスワン at 11:38| Comment(0) | 日記

2007年07月20日

【新築賃貸アパート】1K 87,000円 旗の台駅 徒歩5分

物件NO:005026
所在地:品川区旗の台2
アクセス:旗の台駅 徒歩5分
建物:軽量鉄骨造3階建ての3階部分
間取り:1K  専有面積:20.7u
賃料:8.7万円
管理費:2,000円
敷1・礼1
新築・バストイレ別・TVインタホン・ガス2口システムキッチン
駐輪場(バイク相談)・浴室乾燥機・風呂追い焚き機能・室内洗濯機置き場
ペット可

この物件のお問い合わせ 物件番号をご記入下さい


又は03−6913−4343 アービスワンへお問い合わせください。

204.JPG
posted by アービスワン at 12:05| Comment(0) | 日記

2007年06月05日

【賃貸アパート】1K 92,000円 洗足駅 徒歩4分

物件NO:005024
所在地:品川区旗の台6
アクセス:洗足駅 徒歩4分
建物:軽量鉄骨造2階建ての1階部分
間取り:1K  専有面積:26.72u
賃料:9.2万円
管理費:5,000円
敷2・礼 なし
新築・バストイレ別・TVドアホン・ウオークインクローゼット

この物件のお問い合わせ 物件番号をご記入下さい
又は03−6913−4343 アービスワンへお問い合わせください。



103.JPG
posted by アービスワン at 15:34| Comment(0) | 日記

2007年06月04日

【賃貸マンション】2DK 115,000円 西小山駅 徒歩4分

物件NO:005021
所在地:目黒区原町1
アクセス:西小山駅 徒歩4分
建物:RC5階建ての3階部分
間取り:2DK  専有面積:38u
賃料:11.5万円
管理費:5,000円
敷1・礼2
3口ガスシステムキッチン・バストイレ別・二人入居可・フローリング・独立洗面台・浴室追い焚き機能・ウオシュレット・エアコン

この物件のお問い合わせ 物件番号をご記入下さい

又は03−6913−4343 アービスワンへお問い合わせください。
ニコスビル302.jpg
posted by アービスワン at 11:00| Comment(0) | 日記

【賃貸マンション】1R 66,000円

物件NO:005020
所在地:品川区西中延2
アクセス:旗の台駅 徒歩5分
建物:鉄骨造3階建ての3階部分
間取り:1R  専有面積:16u
賃料:6.6万円
管理費:なし
敷1・礼2
1口電気コンロ付き・洋室5帖・東向き・自転車置き場・天袋付収納

この物件のお問い合わせ 物件番号をご記入下さい
?E?G?X?g?Q.jpg
posted by アービスワン at 10:50| Comment(0) | 日記

2007年03月11日

駐車場

物件NO:P004
小山6丁目 駐車場
西小山駅 徒歩4分
屋根付き 小型車
月額 2.5万円
この物件のお問い合わせ 物件番号をご記入下さい
又はアービスワン TEL03−6913−4343までお問い合わせください。
posted by アービスワン at 18:51| Comment(0) | 日記

2007年02月18日

駐車場

物件NO:P003
小山6丁目 駐車場
西小山駅 徒歩5分
月額 2.7万円

この物件のお問い合わせ 物件番号をご記入下さい
又はアービスワン TEL03−6913−4343までお問い合わせください。



posted by アービスワン at 11:13| Comment(0) | 日記